Sales Lettings management valuations

St. Albans Road, Dartmouth Park

Sold (STC)
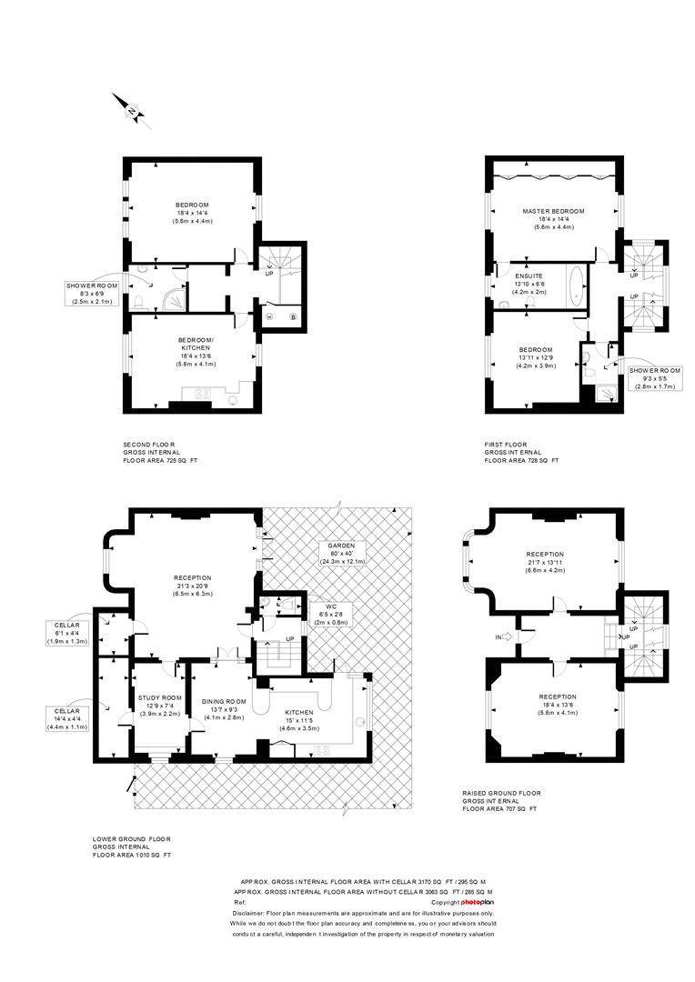
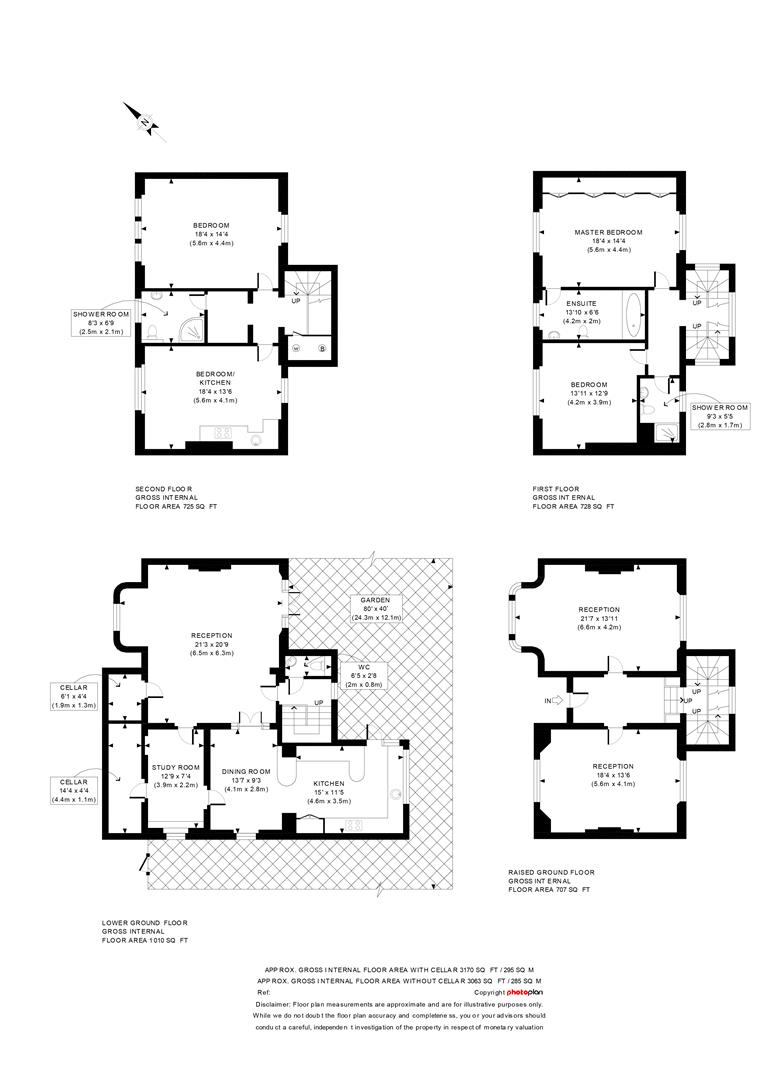
Guide price £3,675,000
Property Type House - semi-detached
Bedrooms 4
Bathrooms 3

Full Description

Approached via a walled and gated driveway with parking for several cars, this spectacular Grade II listed double fronted and semi-detached house Originally built for the English Inventor Sir Henry Bessemer and his family, and designed by Sir Horace Jones best known for his work on the iconic Tower Bridge, this substantial house (3170 sq ft) is arranged over four generous floors with two wonderful high ceilinged reception rooms to the raised ground floor, both retaining ornate period detailing and with dual aspects.The lower ground floor offers spacious and informal reception areas, with a 21′ x 20′ sitting room leading directly to the garden, and intercommunicating with the dining room, kitchen and useful study.Upstairs four double bedrooms with light and airy open aspects are complemented by a large en-suite bathroom and two shower rooms.With direct access from both the sitting room and the kitchen, the garden extends to some 80′ with a southerly aspect.