Sales Lettings management valuations

Oakwood Road, NW11 6RJ

Sold (STC)
Freehold £847,500
Property Type House - Semi-Detached
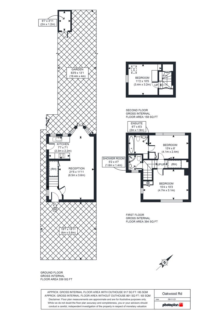
Bedrooms 3
Bathrooms 2

Full Description

UNEXPECTEDLY BACK ON THE MARKET – Newly decorated, charming three bedroom linked cottage in a popular tree lined road on the south side of Hampstead Garden Suburb, a short stroll from Big Wood and The Market Place.

The property benefits from gas central heating, an open plan kitchen/dining/living room with a wood burning stove and French doors opening to the good size attractive rear garden. There are two double bedrooms and two bathrooms with one en suite on the first floor and a further bedroom on the second floor.

NO UPWARD CHAIN – COUNCIL TAX BAND F