Sales Lettings management valuations

Dartmouth Park Road, Dartmouth Park

Let Agreed
Added on 25/08/2016
Per Week pw £350
Property Type Flat
Bedrooms 1
Bathrooms 1

Full Description

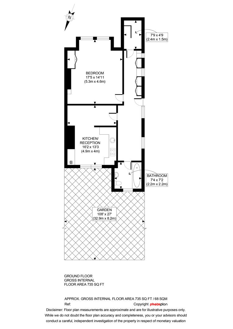
REDUCED FOR A SPEEDY LET – A larger than average, bright and spacious lower ground floor apartment forming with a PRIVATE ENTRANCE and shared use of a COMMUNAL GARDEN.
The flat has been fully refurbished and redecorated throughout and now offers large and versatile accommodation of a double bedroom, open plan kitchen/reception, flexible usable hallway/study area and lots of fitted/wardrobes as well as a modern white bathroom with shower.
Ideally located within a few minutes walking distance of Hampstead Heath, Tufnell Park Underground and various bus routes and the local shops and eateries of Chetwynd Road and Swains Lane.

AVAILABLE IMMEDIATELY – UNFURNISHED – EPC BAND D